Maison à AMAY (4540)

335.000 €

Général
Prix
:
335.000 €
Revenu cadastral
:
1.033 €
Nombre de Chambre(s)
:
3 chr
Nombre de salle(s) de bain
:
1
Nombre de salle(s) de douche
:
1
Garage(s)
:
1
Adresse
:
de la Cloche 23, 4540 AMAY
Superficie totale
:
260 m²
Superficie living
:
30 m²
Superficie terrain
:
744 m²
Disponibilité
:
A l'acte
Description
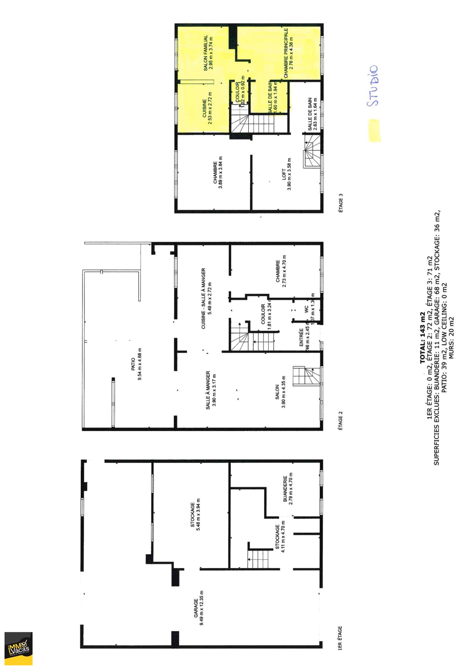
Amay, Rue de la Cloche 23A et 23A/11 Maison familiale lumineuse et appart 1 ch indépendant offrant une superficie habitable de 260 m². Les biens sont cadastrés séparément 347€ appartement et 686€ maison, mais peuvent également redevenir une grande maison 5 ch unifamiliale. Situation dans un quartier résidentiel, au calme (cul de sac) et proche de toutes commodités (gare, centre médical, pharmacie, écoles,...). Maison : cuis équip, living 30 m2, bureau/chambre au rez, pergola de 45 m2, SDB, 2 CH, caves, buanderie, garage, atelier, emplacement parking Appartement : cuis equip, 1 ch, séjour, salle de douche. CC gaz de ville, compteurs électriques séparés, DV en PVC. PEB à F (maison) et G (studio) n° 20250910031620 La propriété se distingue par son grand terrain de 744 m². Le jardin est un véritable havre de paix, idéal pour se détendre Une opportunité exceptionnelle à ne pas manquer pour ceux en quête d’un foyer accueillant et spacieux ainsi que pour les personnes devant avoir un parent à proximité. L'appartement pouvant l'accueillir. Poss également de revenu complémentaire mensuel de +/- 550€. Un investisseur pourrait également trouver son intérêt par 2 locations 1500€/mois.
Informations financières
Mentions legales
Droit de préemption possible
:
Pas encore demandé(e)
Permis de bâtir obtenu
:
Pas encore demandé(e)
Citation pour infraction urbanistique
:
Pas encore demandé(e)
Autorisation de lotissement
:
Pas encore demandé(e)
Affectation
:
Pas encore demandée
Héritages
:
Non
Certificat energétique
PEB No.20250821029030
E spec
:
458 kWh/m².an
E totale
:
33.666 kWh/an
Emission CO2
:
6129 Kg CO2/m².an


Confort/Equipements
Chauffage
:
Central gaz
Cuisine
:
Equipée
Vitrage
:
Double
Type de vitrage
:
pvc
Confort intérieur
:
Télécommande du garage, Cuisine équipée américaine, Cave à vins
Charges
Carte Google
Agrandir le plan
Street view