APPARTEMENT à AMAY (4540)

129.000 €

Général
Prix
:
129.000 €
Revenu cadastral
:
347 €
Nombre de Chambre(s)
:
2 chr
Nombre de salle(s) de bain
:
1
Nombre de salle(s) de douche
:
1
Adresse
:
de la Cloche 23, 4540 AMAY
Disponibilité
:
A l'acte
Description
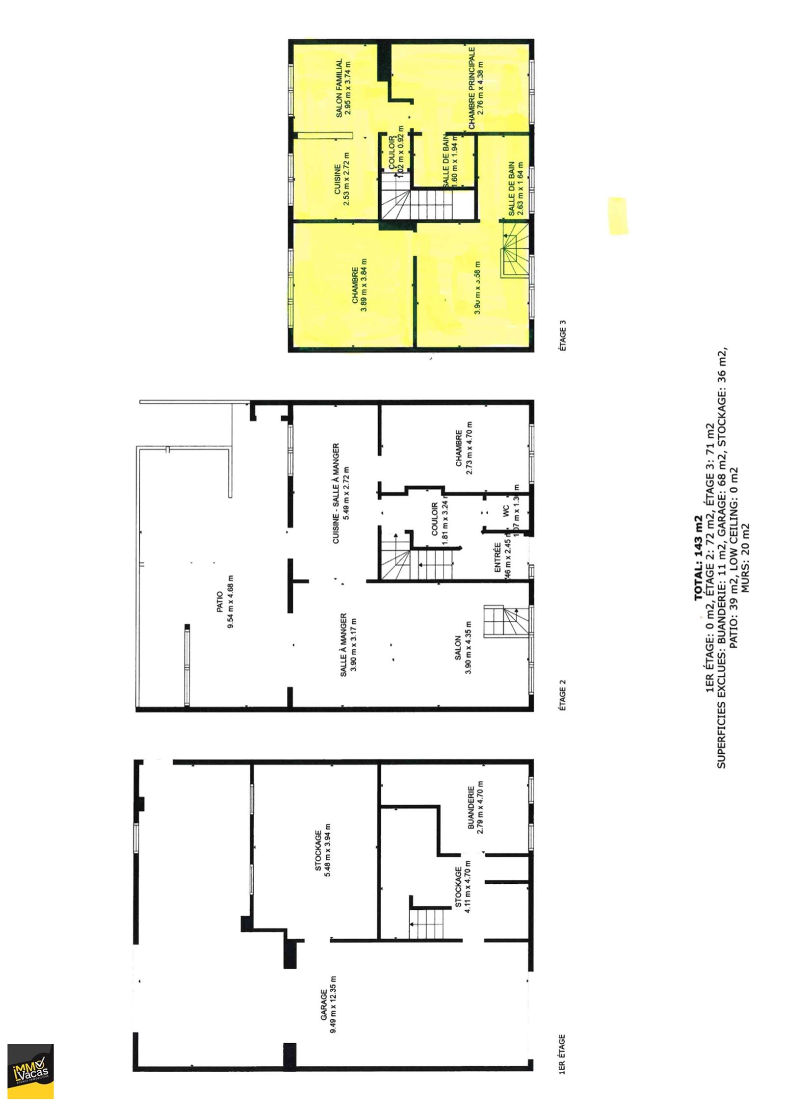
Appartement 2ch, SD douches, SDB, cuis équiip, living, RC 347€. PEB à G. Etat à terminer, travaux simples. Opportunité exceptionnelle pour bricoleur. Situation dans un quartier résidentiel, au calme (cul de sac) et proche de toutes commodités à 500 mètres de la gare, à 100 m du centre médical et pharmacie, écoles, commerces,...). CC gaz de ville, compteurs électriques séparés, DV en PVC. Faire offre à p de 129.000€.
Informations financières
Mentions legales
Droit de préemption possible
:
Pas encore demandé(e)
Permis de bâtir obtenu
:
Pas encore demandé(e)
Citation pour infraction urbanistique
:
Pas encore demandé(e)
Autorisation de lotissement
:
Pas encore demandé(e)
Affectation
:
Pas encore demandée
Héritages
:
Non
Certificat energétique
PEB No.20250821029030
E spec
:
458 kWh/m².an
E totale
:
33.666 kWh/an
Emission CO2
:
6129 Kg CO2/m².an


Confort/Equipements
Chauffage
:
Central gaz
Cuisine
:
Coin cuisine
Vitrage
:
Double
Type de vitrage
:
pvc
Confort intérieur
:
Cuisine équipée américaine
Charges
Carte Google
Agrandir le plan
Street view